ADICIÓN
A.N.PRO.N.H.A.V.
SAN BERNARDINO, CARACAS
PROYECTO
ALZADOS
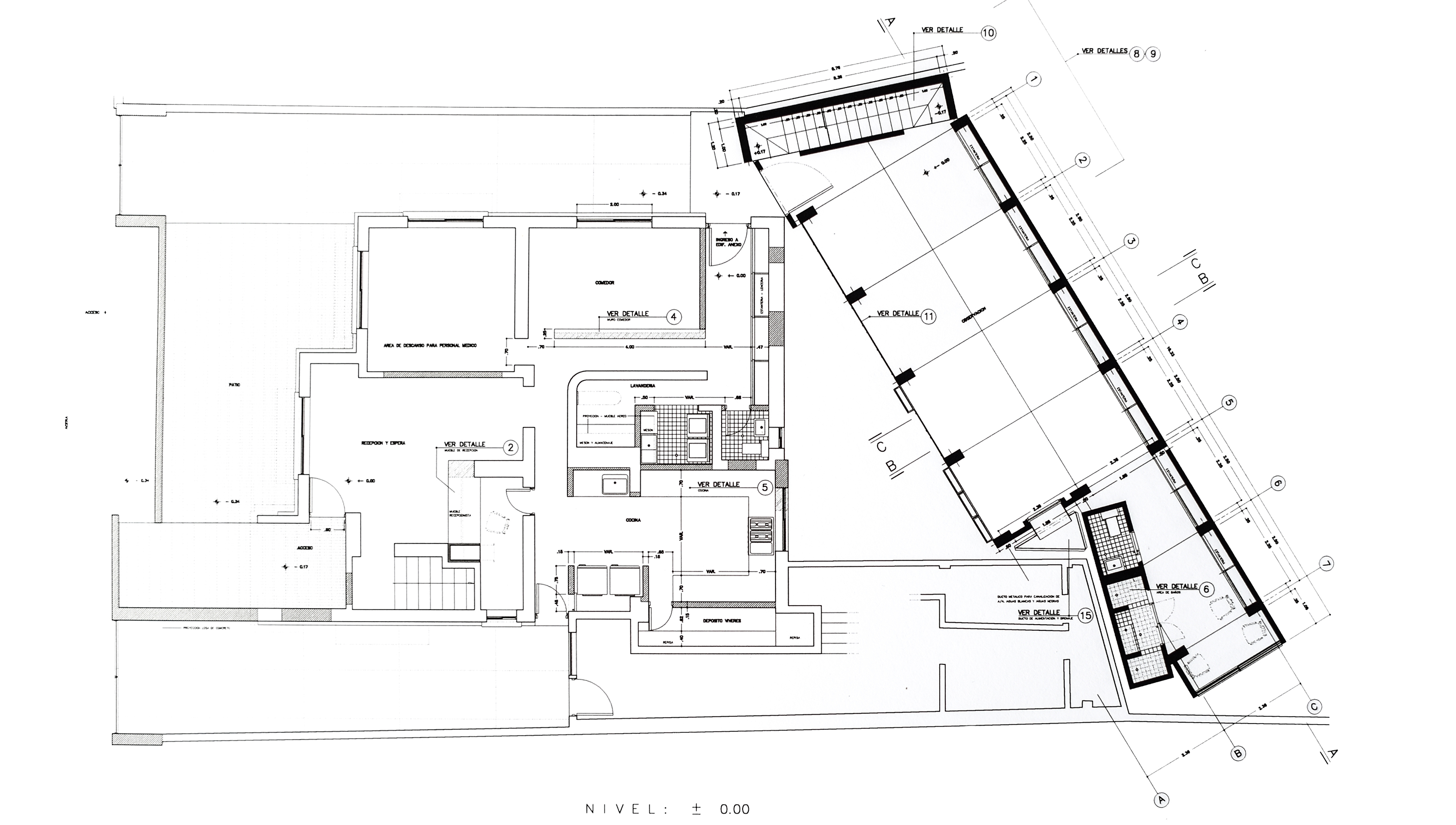
PLANTA + 0.00
PLANTA + 4.50
PLANTA + 5.90 – PLANTA – 2.95
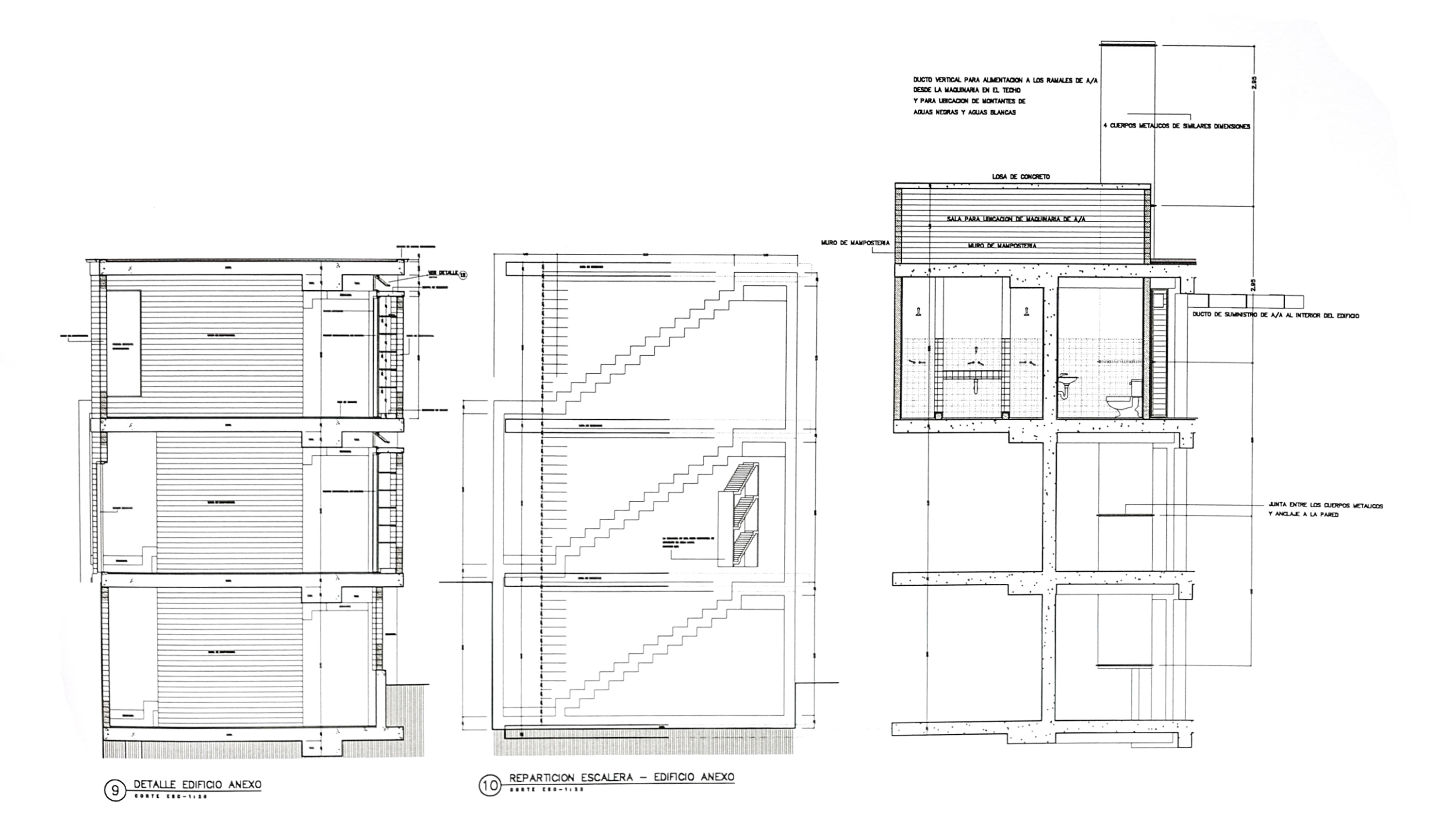
DETALLES CONSTRUCTIVOS
ALZADOS
ADICIÓN
A.N.PRO.N.H.A.V.
SAN BERNARDINO, CARACAS
PROYECTO
ALZADOS
PLANTA + 0.00
PLANTA + 4.50
PLANTA + 5.90 – PLANTA – 2.95
DETALLES CONSTRUCTIVOS
ALZADOS








