CONCURSO
IDEAS NUEVA SEDE A.E.E.C.
VALENCIA, VENEZUELA
ALZADO FRONTAL – PLANTA + 2.50
SECCIÓN LONGITUDINAL 1 – PLANTA + 12.00
SECCIÓN LONGITUDINAL 2 – PLANTA + 20.00
ALZADO POSTERIOR – PLANTA TECHO
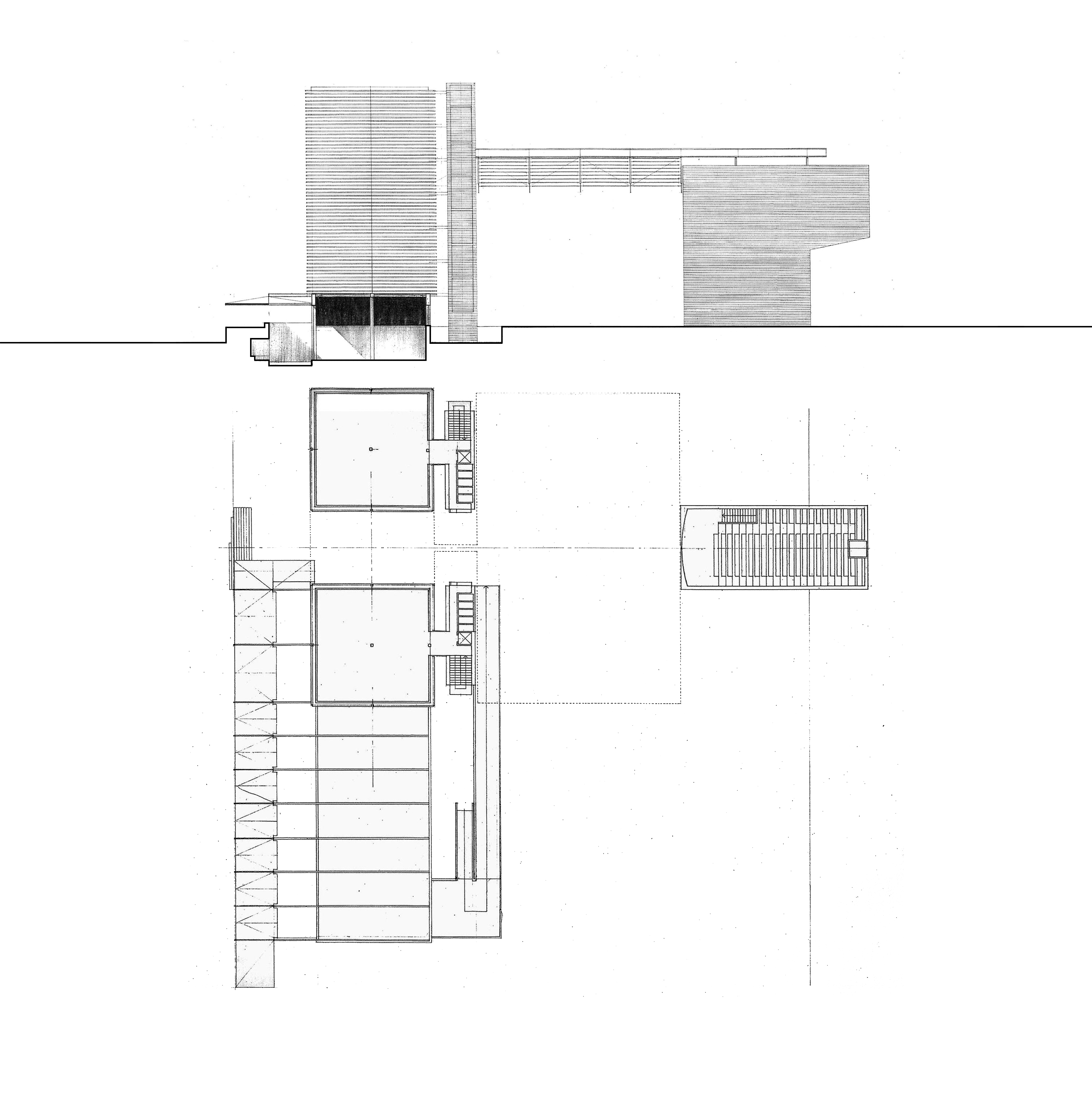
CONCURSO
IDEAS NUEVA SEDE A.E.E.C.
VALENCIA, VENEZUELA
ALZADO FRONTAL – PLANTA + 2.50
SECCIÓN LONGITUDINAL 1 – PLANTA + 12.00
SECCIÓN LONGITUDINAL 2 – PLANTA + 20.00
ALZADO POSTERIOR – PLANTA TECHO



