ADMINISTRADORA DOMUS
C.C.P.C. CARACAS, VENEZUELA
PROYECTO Y EJECUCIÓN
ISOMETRÍA
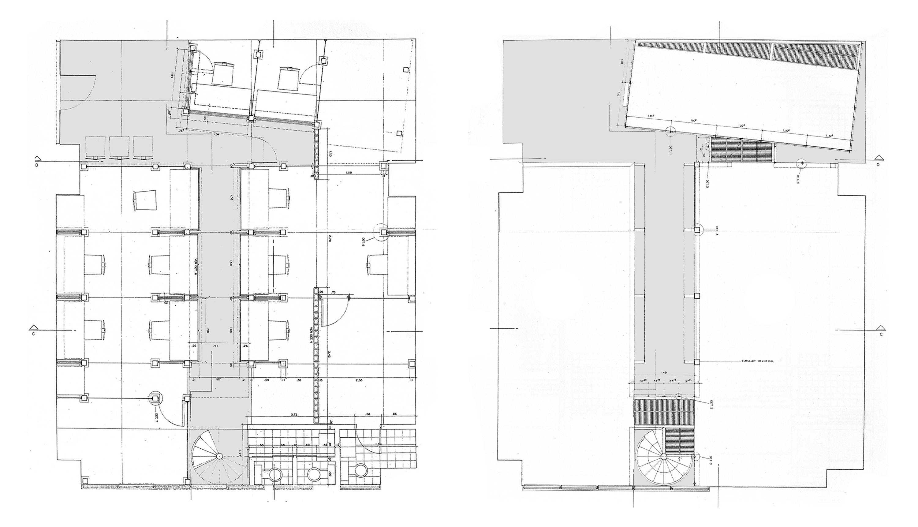
PLANTA + 1.20 – PLANTA + 3.90
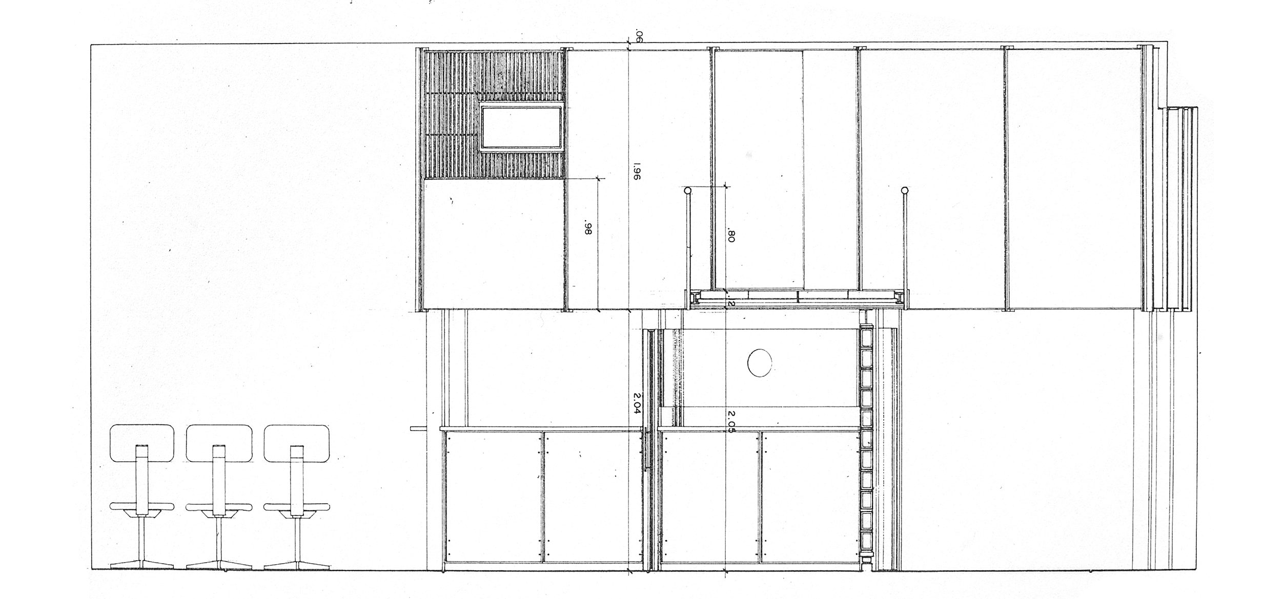
SECCIÓN TRANSVERSAL 1
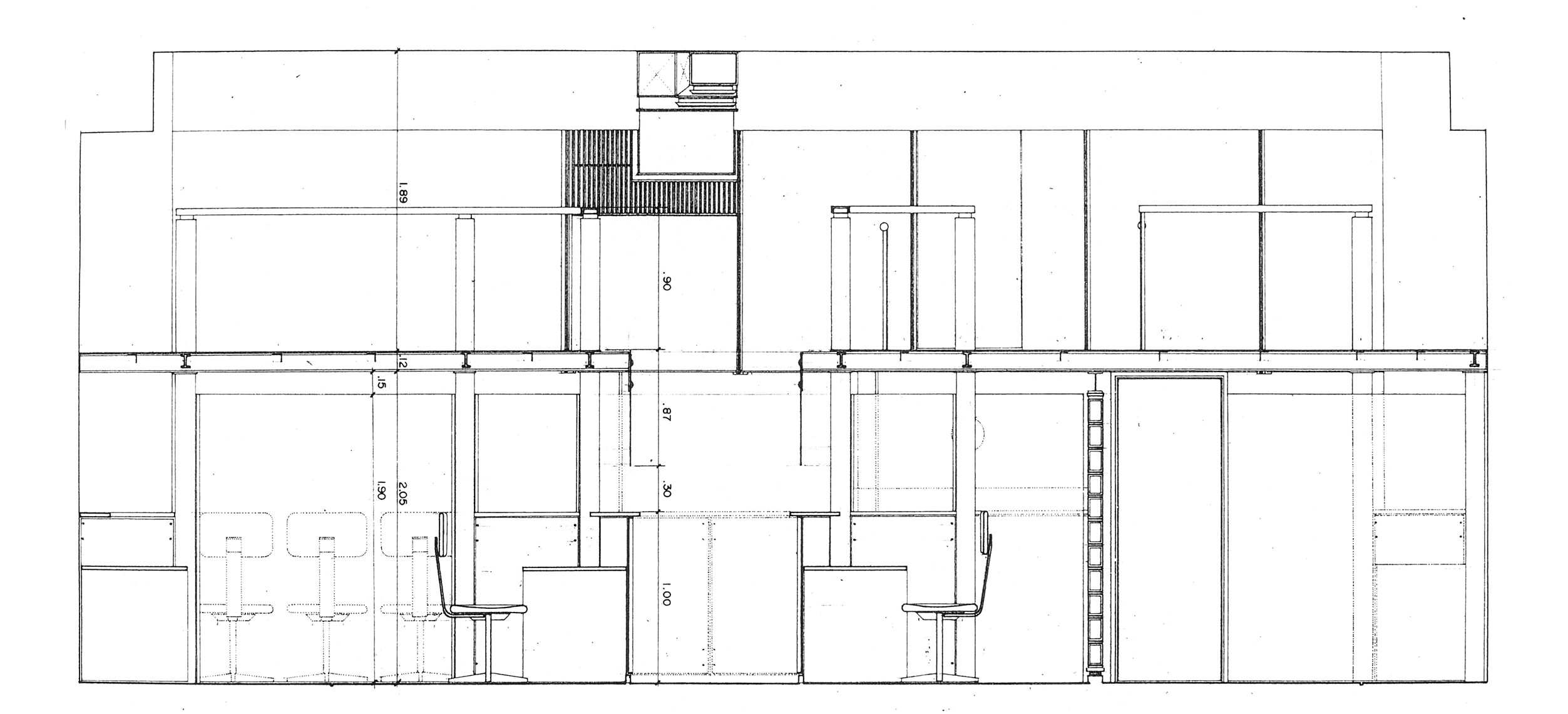
SECCIÓN TRANSVERSAL 2
ADMINISTRADORA DOMUS
C.C.P.C. CARACAS, VENEZUELA
PROYECTO Y EJECUCIÓN
ISOMETRÍA
PLANTA + 1.20 – PLANTA + 3.90
SECCIÓN TRANSVERSAL 1
SECCIÓN TRANSVERSAL 2




