VIVIENDAS DE ESPACIO INTERIOR MODIFICABLE
SANTIAGO, CHILE
ANTEPROYECTO
SECCIÓN Y ALZADO DE LA UNIDAD
ALZADO DEL CONJUNTO
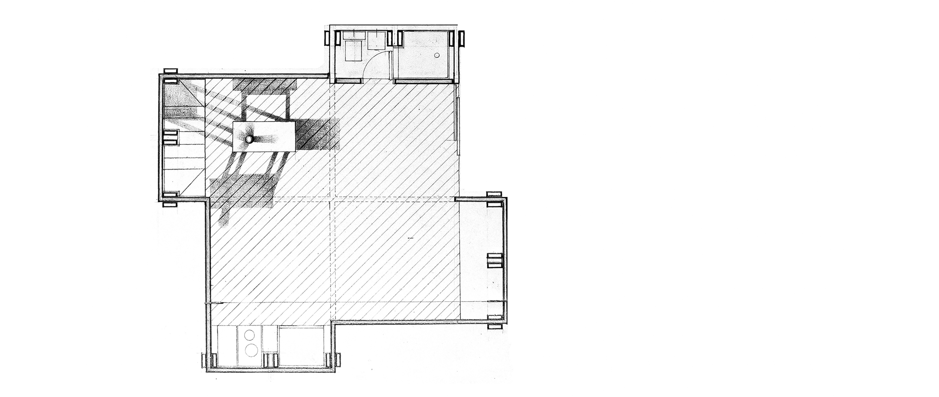
ESPACIO INTERIOR MODIFICABLE
SECCIÓN DE 2 UNIDADES – PLANTA
SECCIÓN DE VARIANTE – PLANTA
ISOMETRÍA ESTRUCTURAL
VIVIENDAS DE ESPACIO INTERIOR MODIFICABLE
SANTIAGO, CHILE
ANTEPROYECTO
SECCIÓN Y ALZADO DE LA UNIDAD
ALZADO DEL CONJUNTO
ESPACIO INTERIOR MODIFICABLE
SECCIÓN DE 2 UNIDADES – PLANTA
SECCIÓN DE VARIANTE – PLANTA
ISOMETRÍA ESTRUCTURAL







