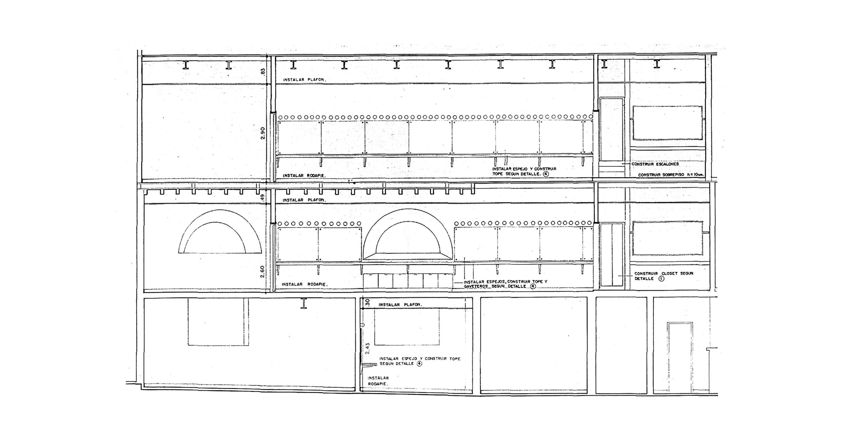
SUB-PROYECTO DE CAMERINOS
RESTAURACION TEATRO MUNICIPAL
CARACAS, VENEZUELA
PROYECTO
MUEBLE CAMERINO COLECTIVO
MESA CAMERINO INDIVIDUAL
MESA/ESTANTE EN ÁREA DE COSTURA
SUB-PROYECTO DE CAMERINOS
RESTAURACION TEATRO MUNICIPAL
CARACAS, VENEZUELA
PROYECTO
MUEBLE CAMERINO COLECTIVO
MESA CAMERINO INDIVIDUAL
MESA/ESTANTE EN ÁREA DE COSTURA





