TALLERES DE PROYECTO
UNIVERSIDAD JOSÉ MARÍA VARGAS, CARACAS
1986 1992
X PLAN URBANO / EDIFICIOS DE USOS MIXTOS
CASCO HISTÓRICO DE PETARE, CARACAS
VIVIENDA MULTIFAMILIAR + BIBLIOTECA PÚBLICA





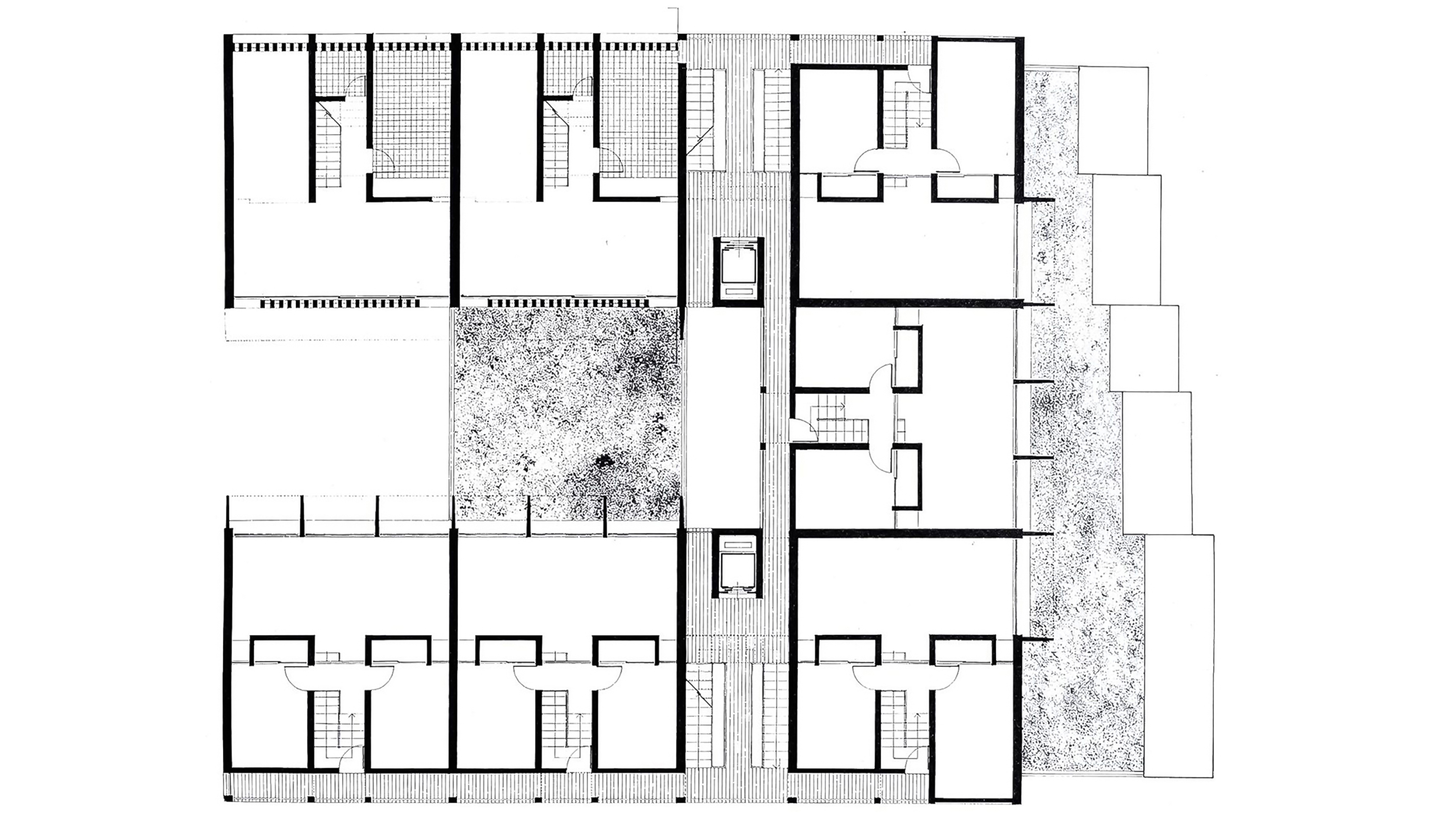
VIII VIVIENDA MULTIFAMILIAR
SABANA GRANDE, CARACAS
CALLE Y PLAZA ELEVADA, AZOTEA, ARQUETIPOS CONSTRUCTIVOS
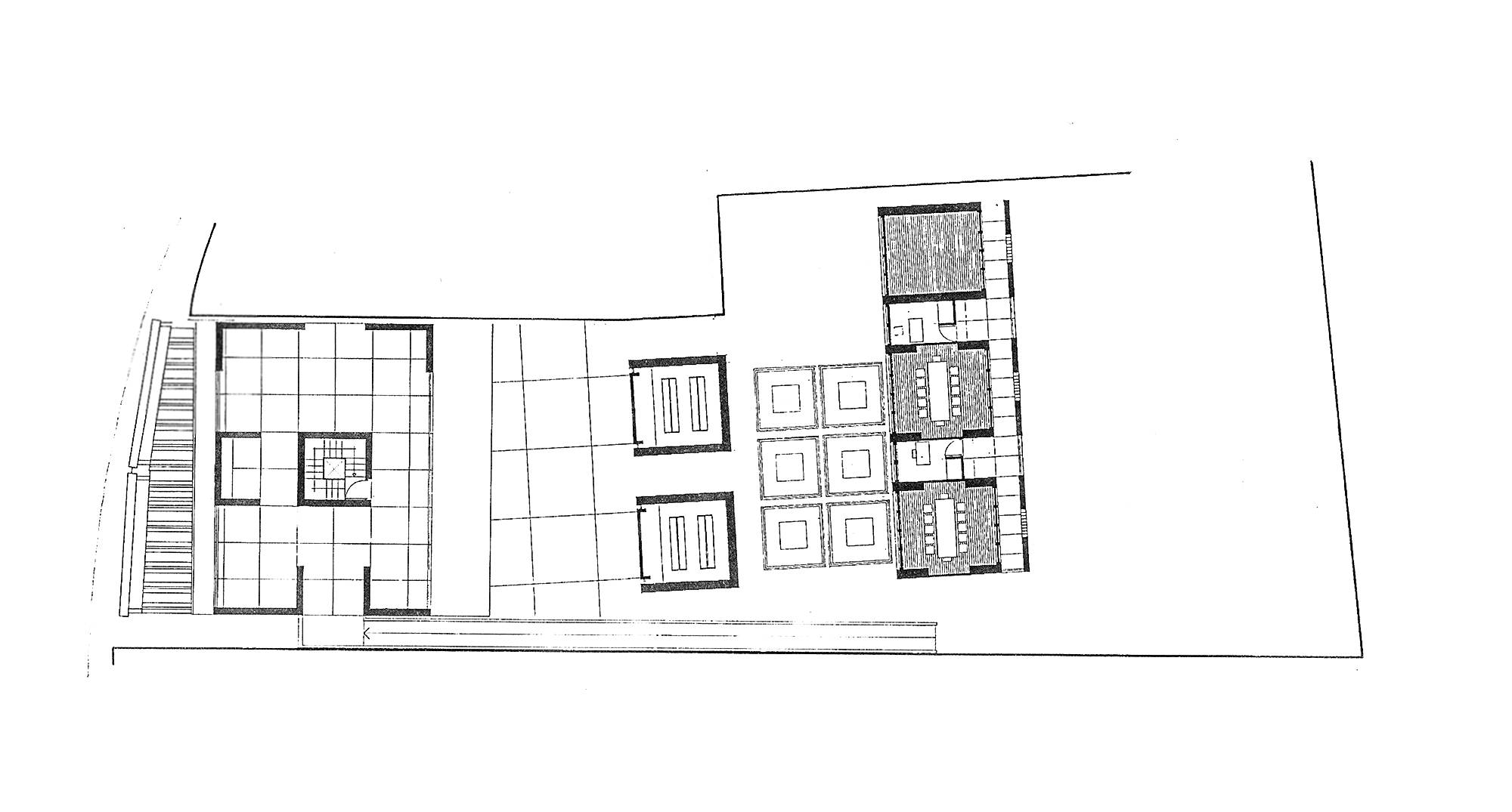
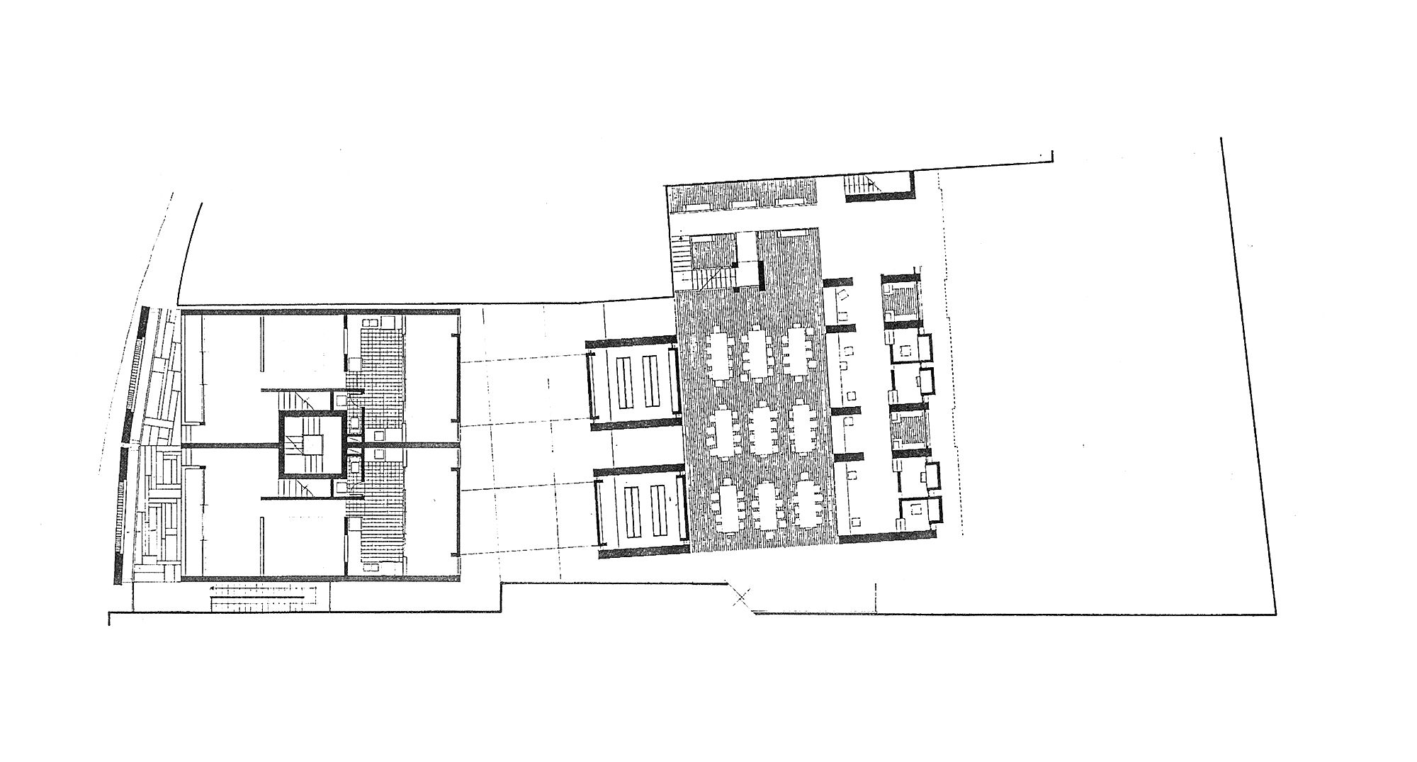
VII VIVIENDA MULTIFAMILIAR
CUBIERTA MÁXIMA, UNIDAD MÍNIMA
V INSERCIÓN URBANA
PLAZA MORELOS, CARACAS
VIVIENDAS TALLER + AUDITORIO Y GALERÍA
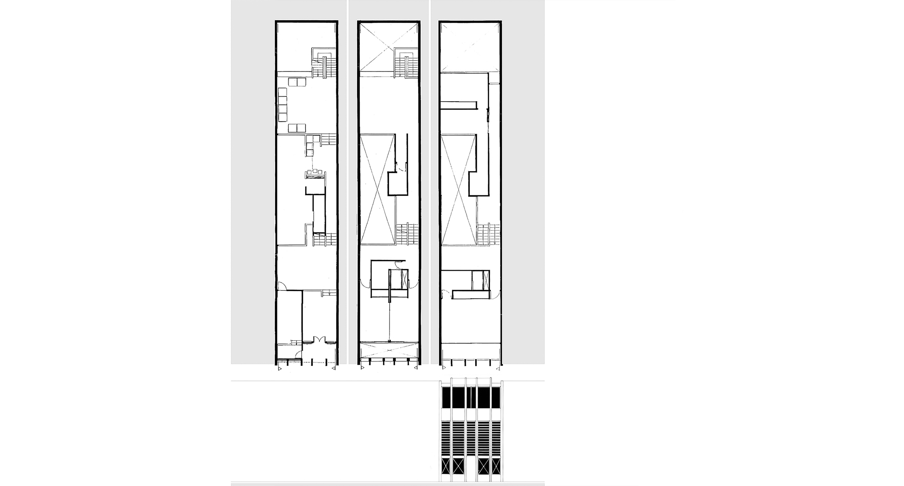
IV VIVIENDA UNIFAMILIAR ENTRE MEDIANERAS











