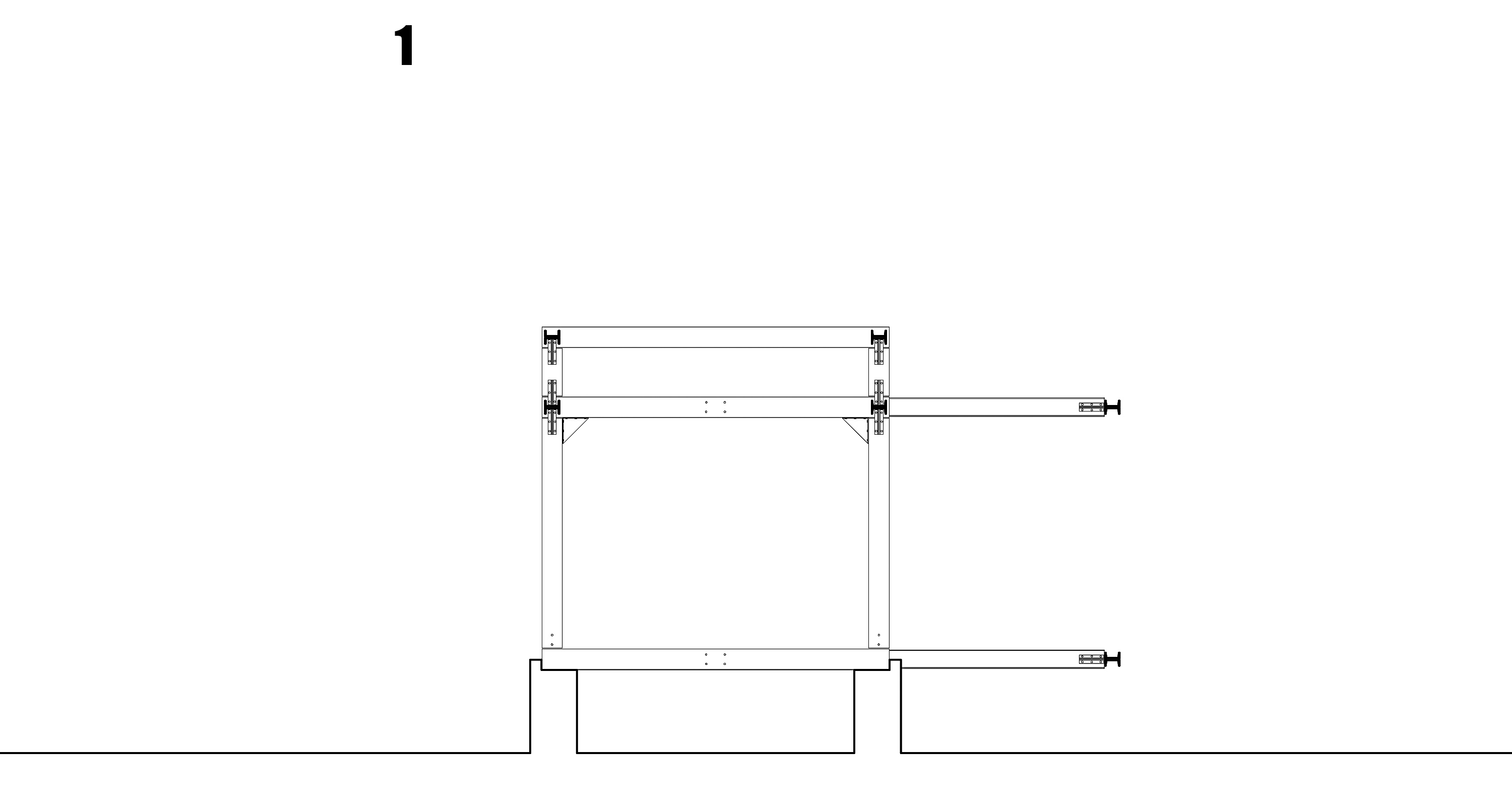
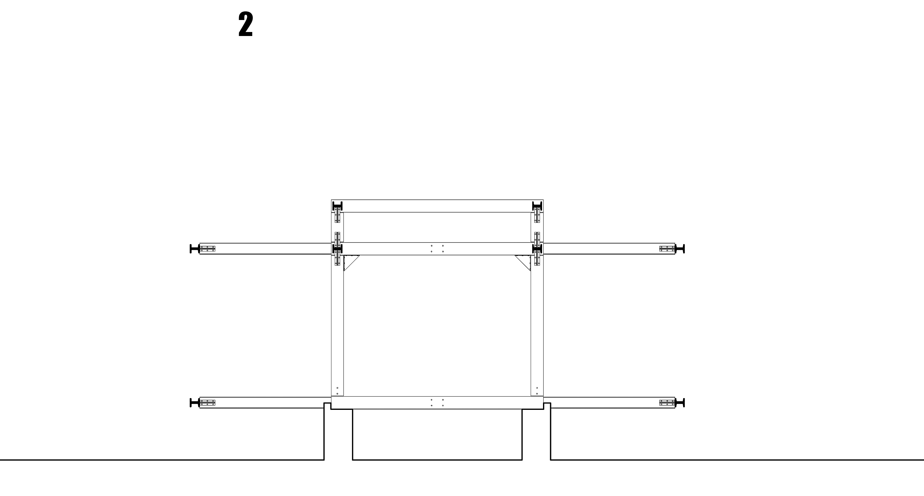
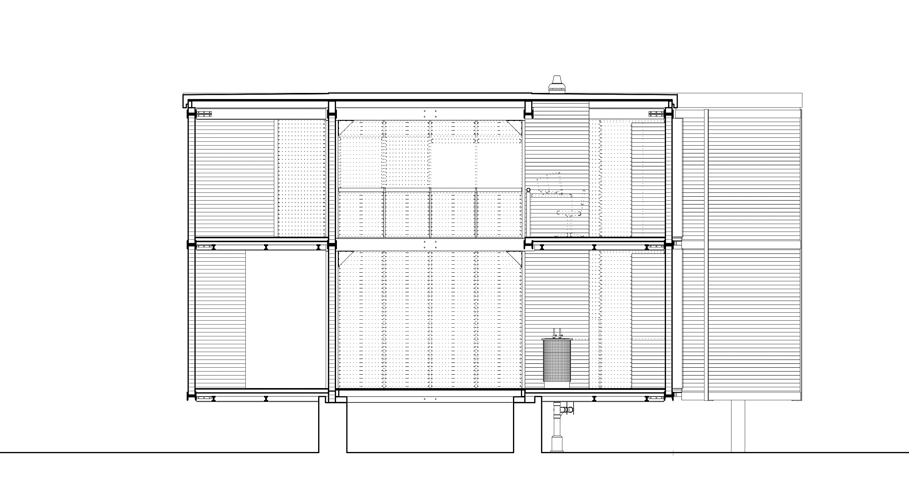
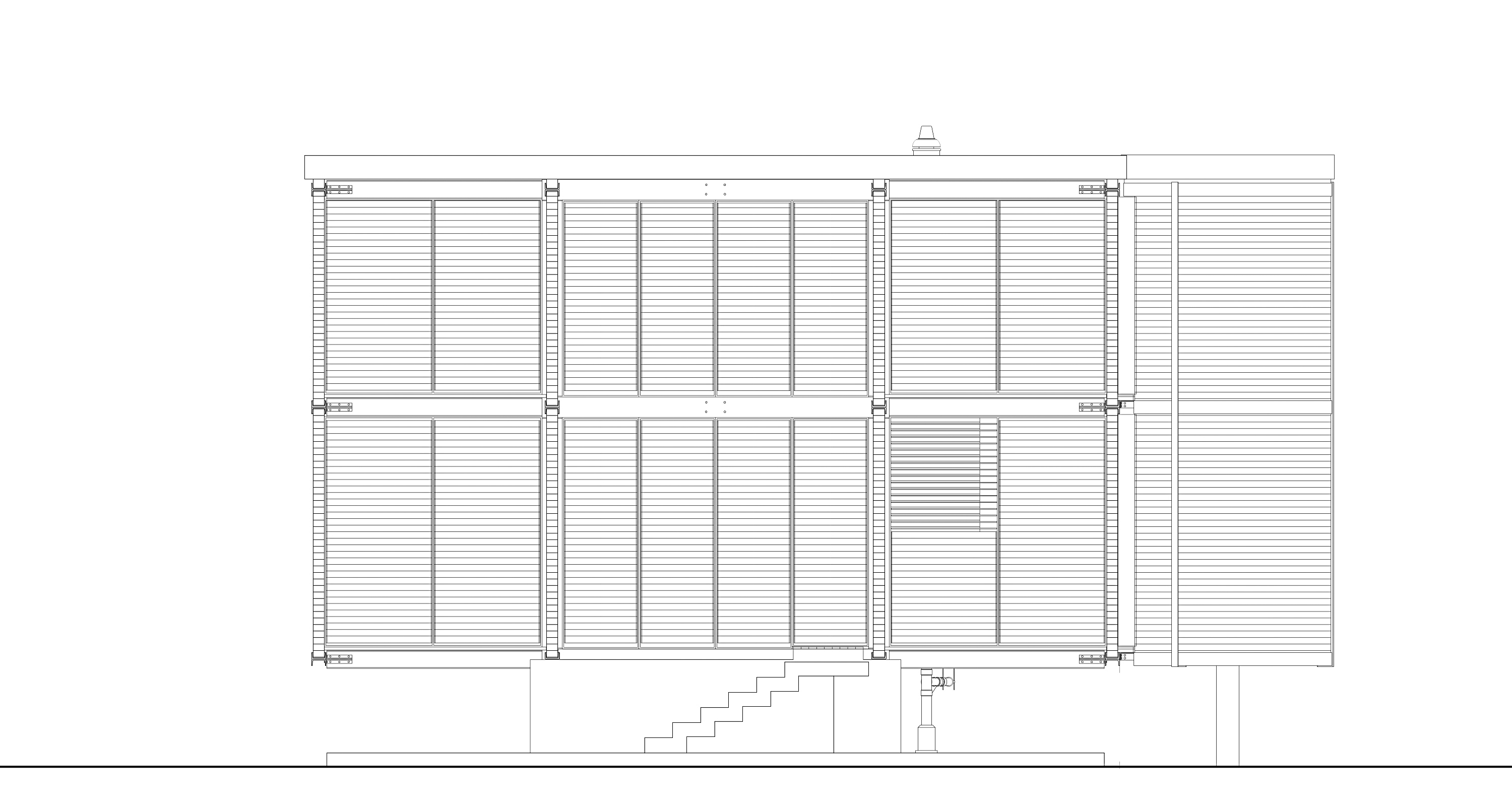
VIVIENDA CON 3 FASES DE CRECIMIENTO PROGRESIVO
CARACAS
PROYECTO
ALZADO LATERAL – PLANTA PISO 1
FASE 1: SECCIONES, ALZADOS Y PLANTAS
FASE 2: SECCIONES, ALZADOS Y PLANTAS
FASE 3: SECCIONES, ALZADOS Y PLANTAS
VIVIENDA CON 3 FASES DE CRECIMIENTO PROGRESIVO
CARACAS
PROYECTO
ALZADO LATERAL – PLANTA PISO 1
FASE 1: SECCIONES, ALZADOS Y PLANTAS
FASE 2: SECCIONES, ALZADOS Y PLANTAS
FASE 3: SECCIONES, ALZADOS Y PLANTAS
























