ADICIÓN A DISPENSARIO MÉDICO
AUTORIDAD ÚNICA DE ÁREA ARCHIPIÉLAGO LOS ROQUES, VENEZUELA
PROYECTO (C / C. NORIEGA)
ALZADO EXTERIOR
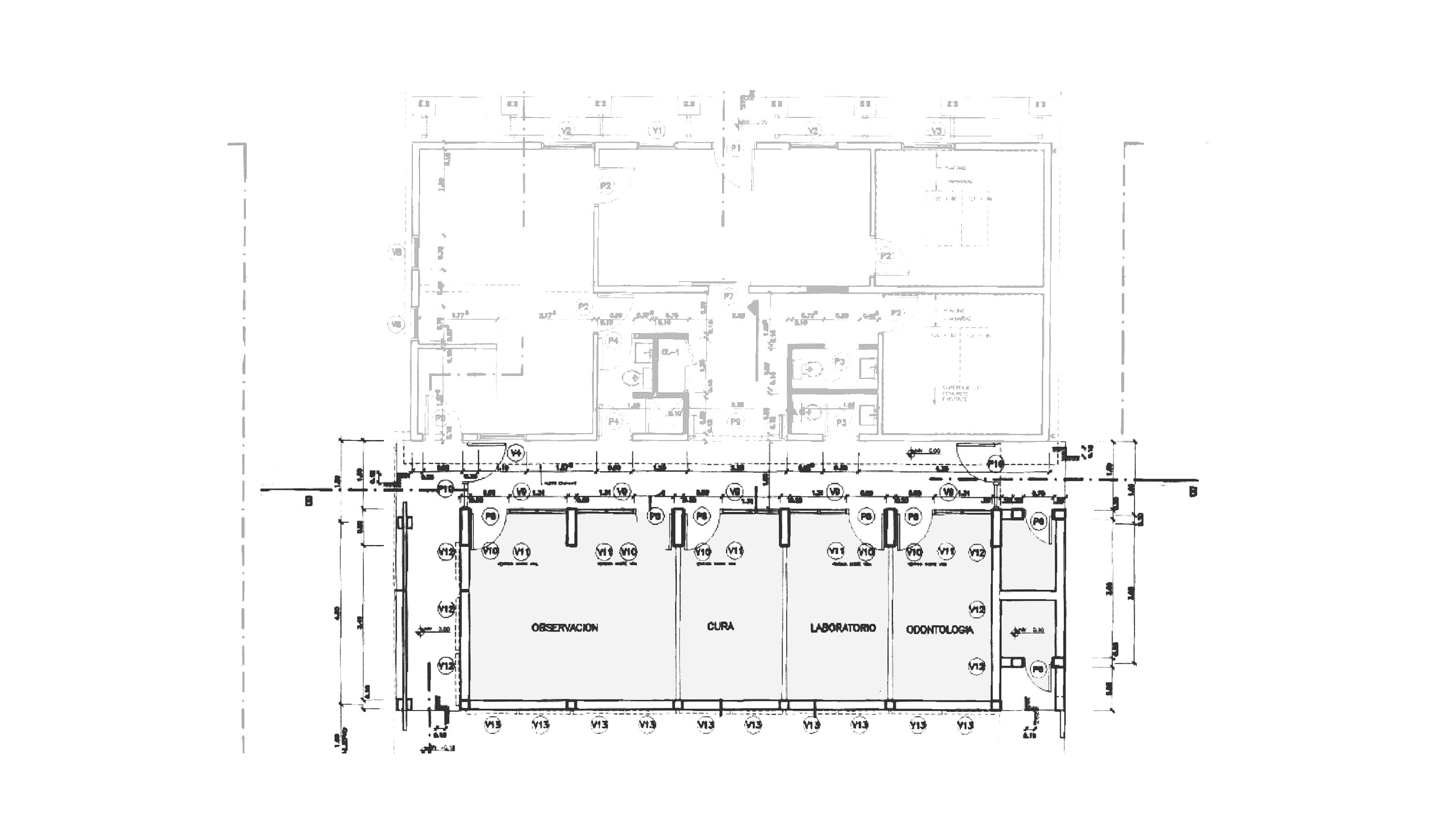
PLANTA
ALZADO INTERIOR
SECCIÓN
ALZADO LATERAL
PERSPECTIVA
ADICIÓN A DISPENSARIO MÉDICO
AUTORIDAD ÚNICA DE ÁREA ARCHIPIÉLAGO LOS ROQUES, VENEZUELA
PROYECTO (C / C. NORIEGA)
ALZADO EXTERIOR
PLANTA
ALZADO INTERIOR
SECCIÓN
ALZADO LATERAL
PERSPECTIVA





