LOS CHAGUARAMOS, CARACAS
PROYECTO Y EJECUCIÓN
ANTEPROYECTO: PLANTA Y CORTE
EJECUCIÓN
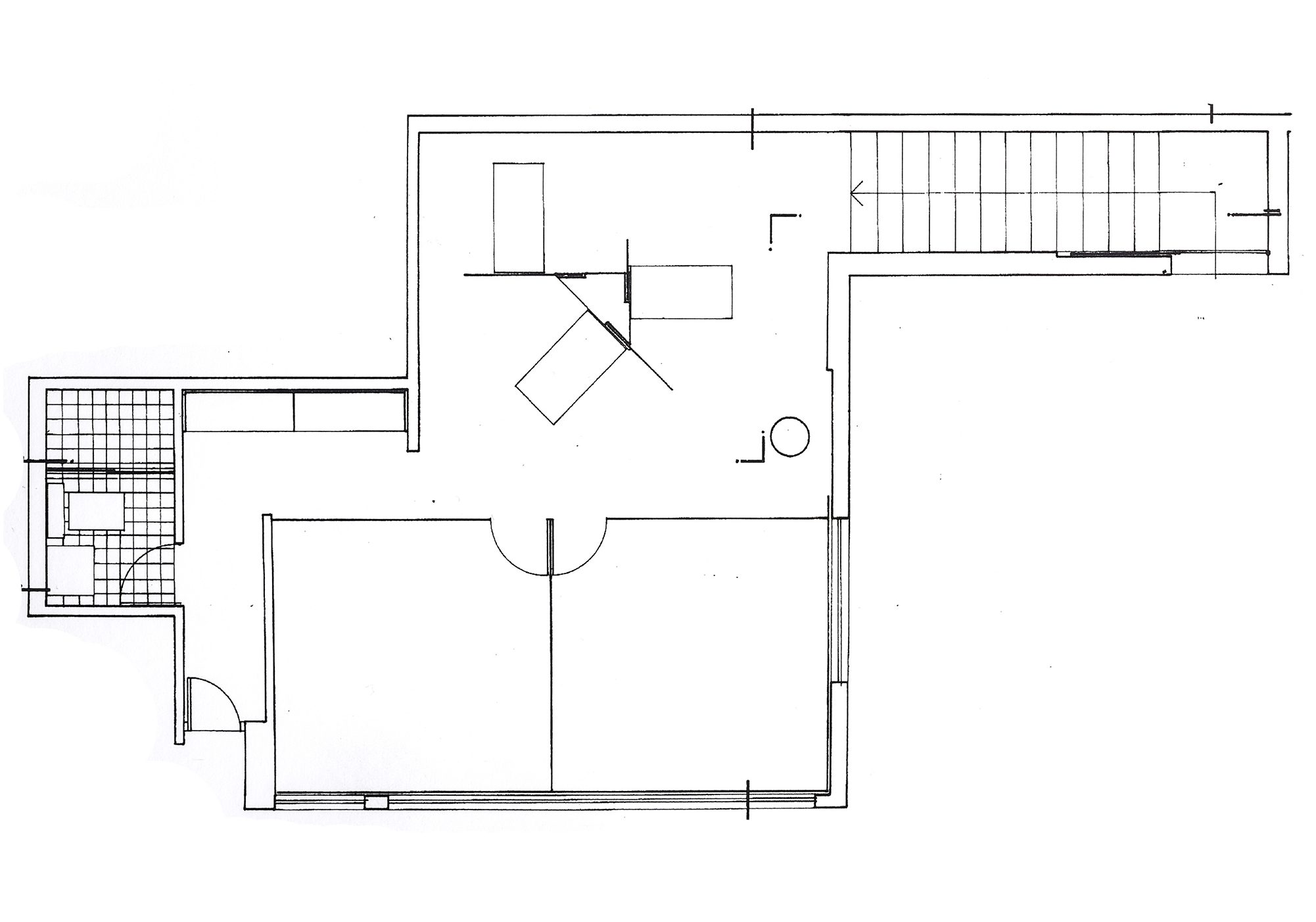
PLANTA
CORTE AA
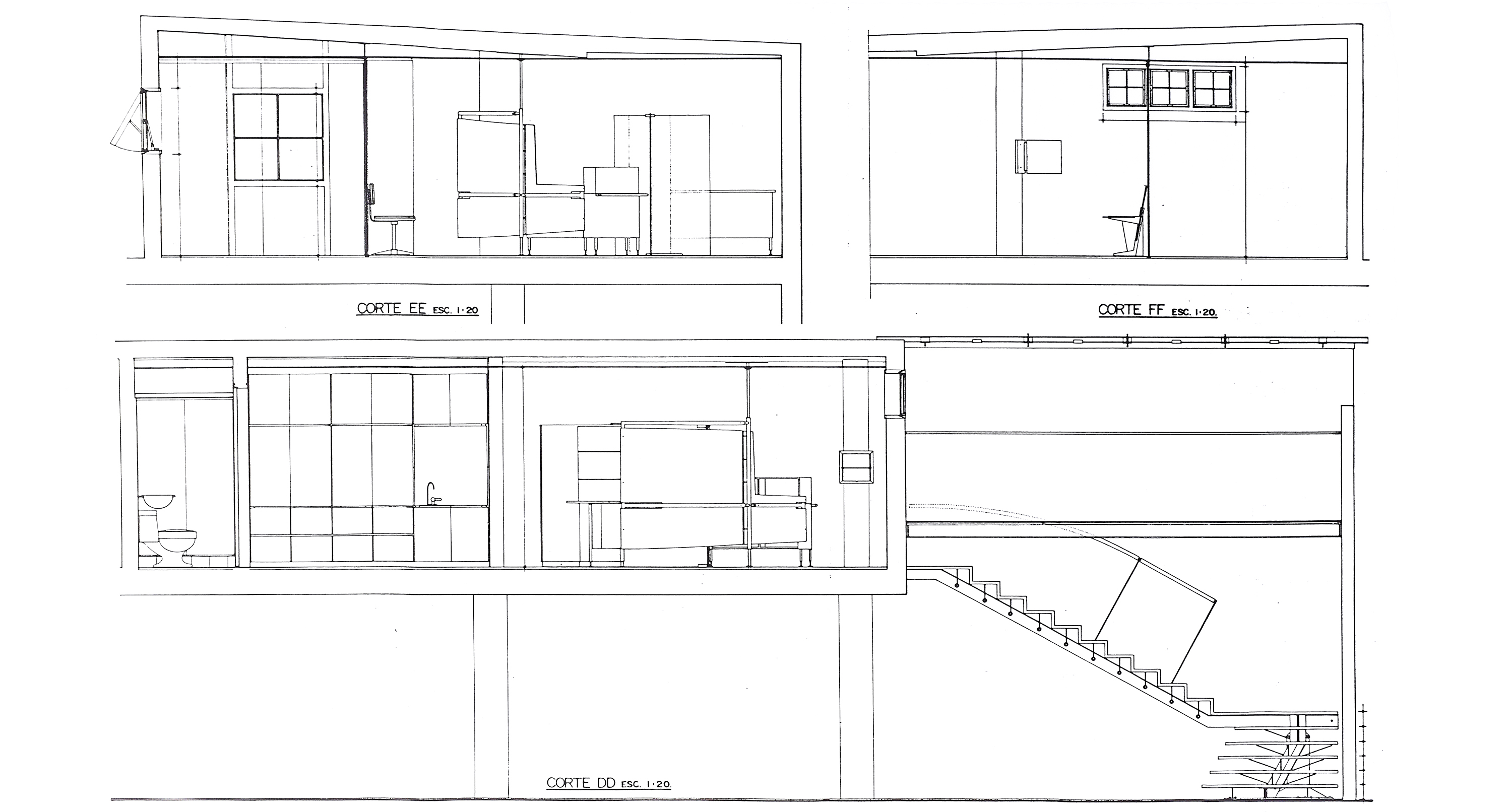
CORTES EE FF DD
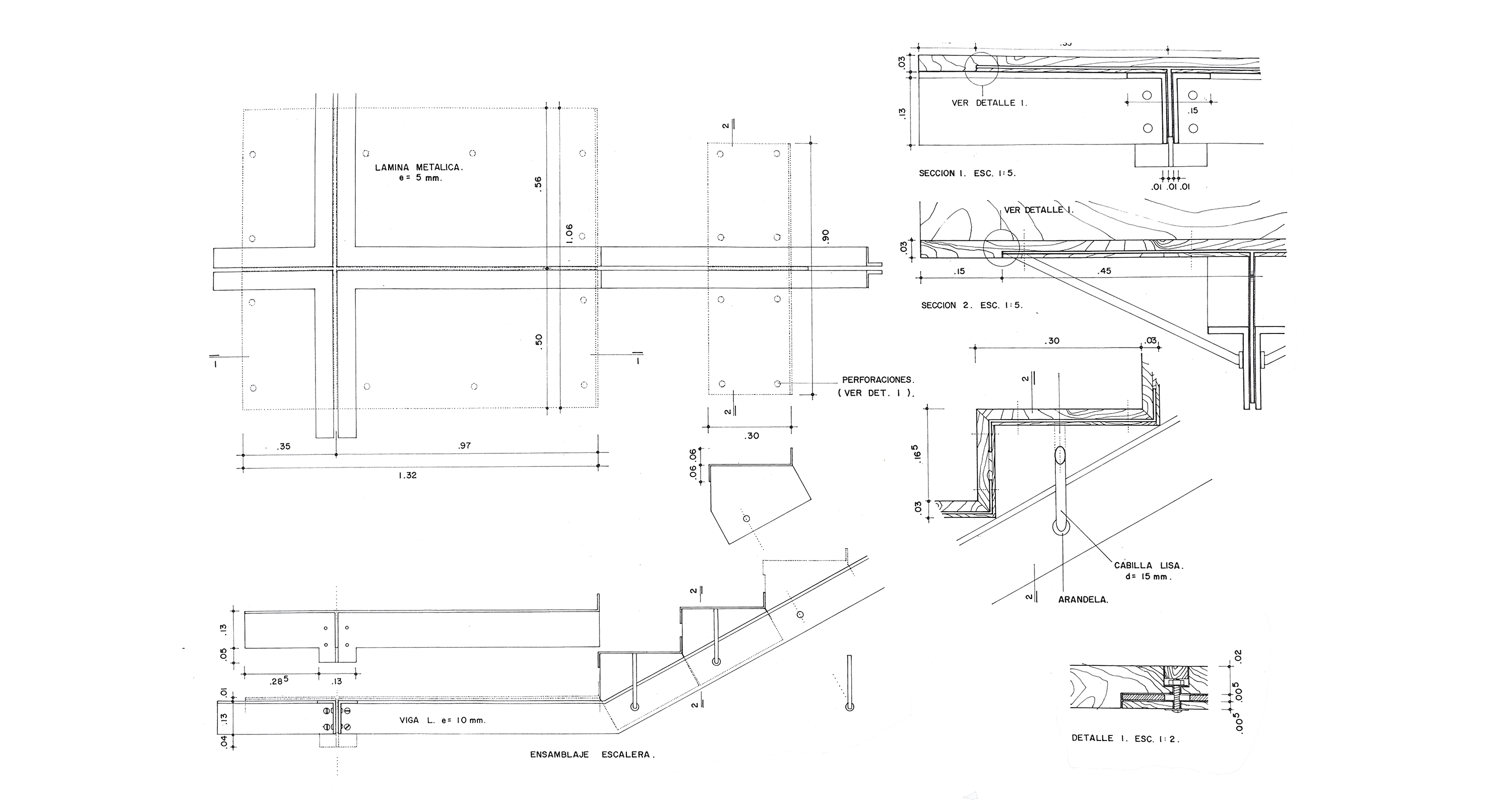
ESCALERA
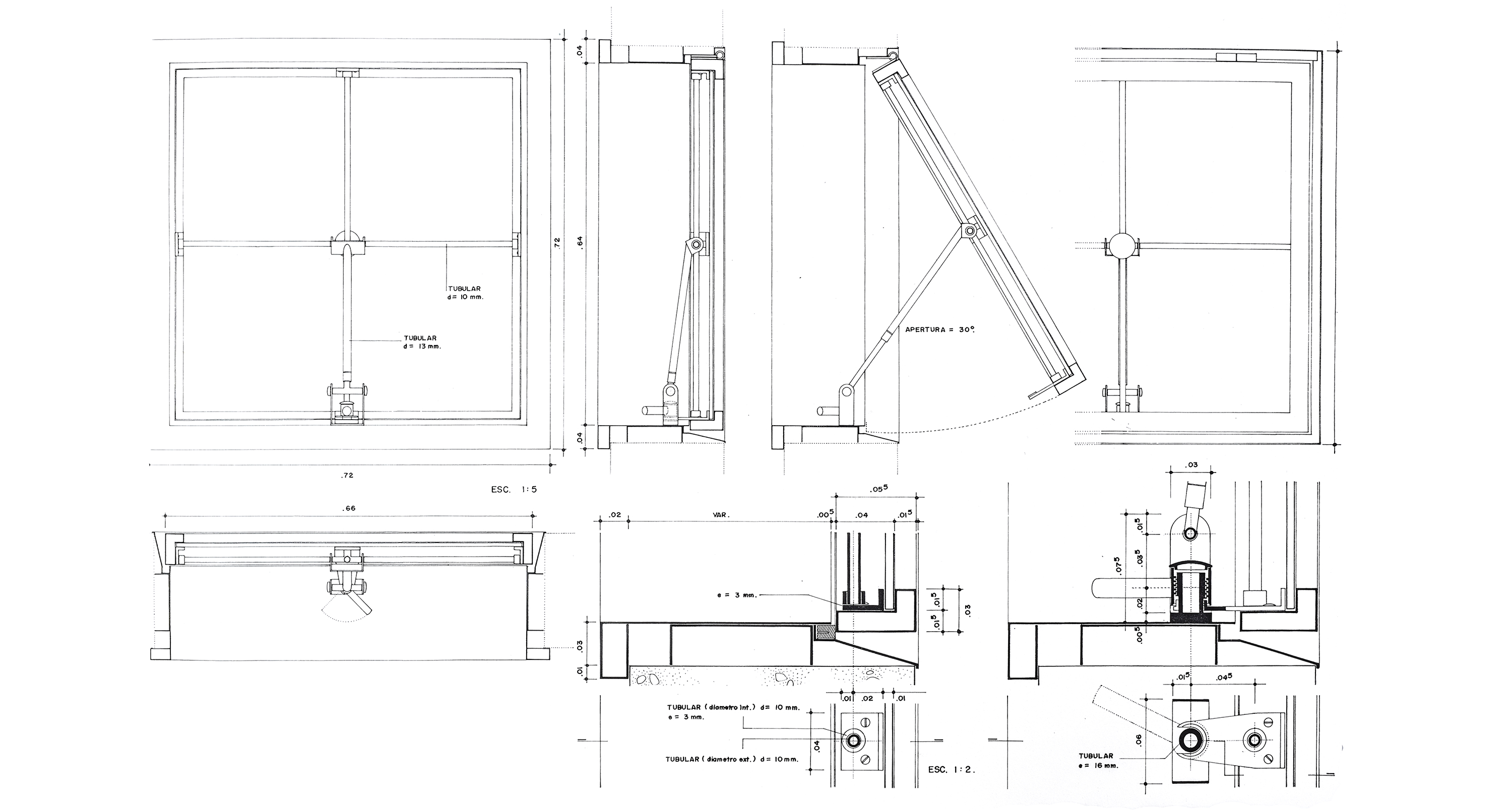
VENTANAS
TABIQUE METÁLICO CURVO
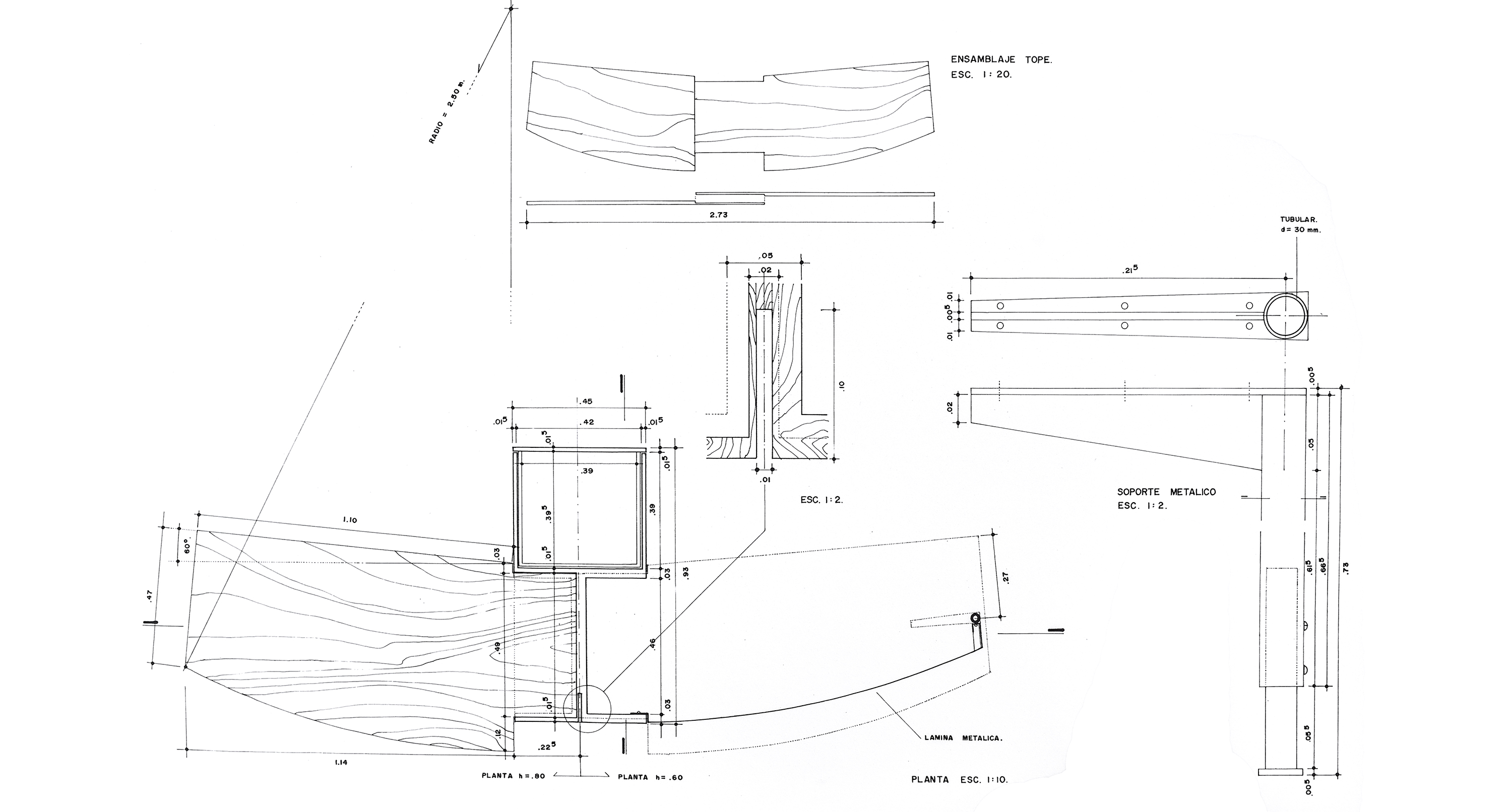
MUEBLE DE RECEPCIÓN
MUEBLE DE ATENCIÓN
LAVAMANOS
REVISTERO EN COLUMNA






LOS CHAGUARAMOS, CARACAS
PROYECTO Y EJECUCIÓN
ANTEPROYECTO: PLANTA Y CORTE
EJECUCIÓN
PLANTA
CORTE AA
CORTES EE FF DD
ESCALERA
VENTANAS
TABIQUE METÁLICO CURVO
MUEBLE DE RECEPCIÓN
MUEBLE DE ATENCIÓN
LAVAMANOS
REVISTERO EN COLUMNA


















