ADICIÓN Y MOBILIARIO
N. VILLALOBOS
EDO. MIRANDA, VENEZUELA
PROYECTO
ADICIÓN AZOTEA ALT. 1
ALZADO
SECCIÓN
PLANTA
ADICIÓN AZOTEA ALT. 2
ALZADO LATERAL
PLANTA
ALZADO FRONTAL Y POSTERIOR
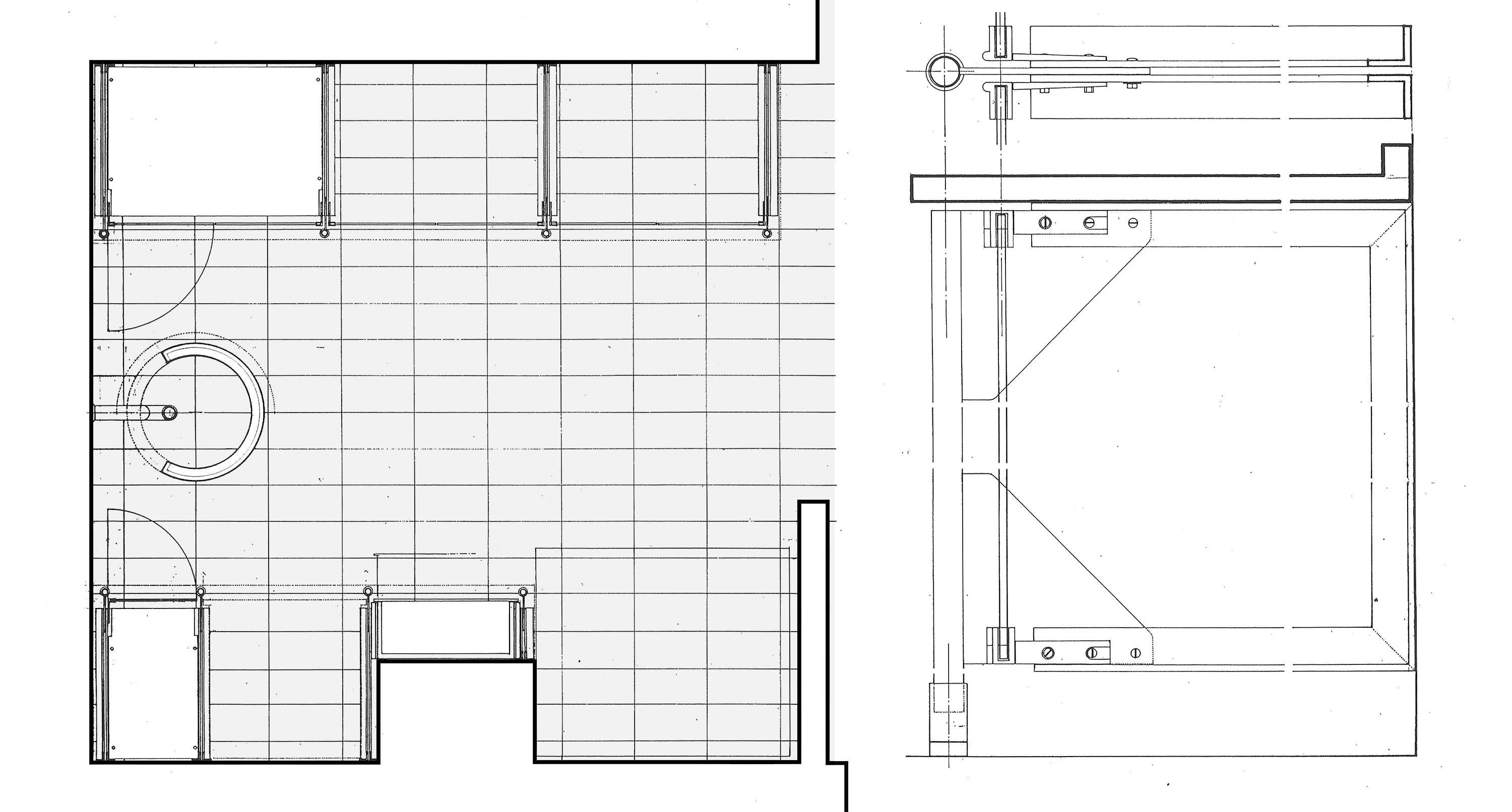
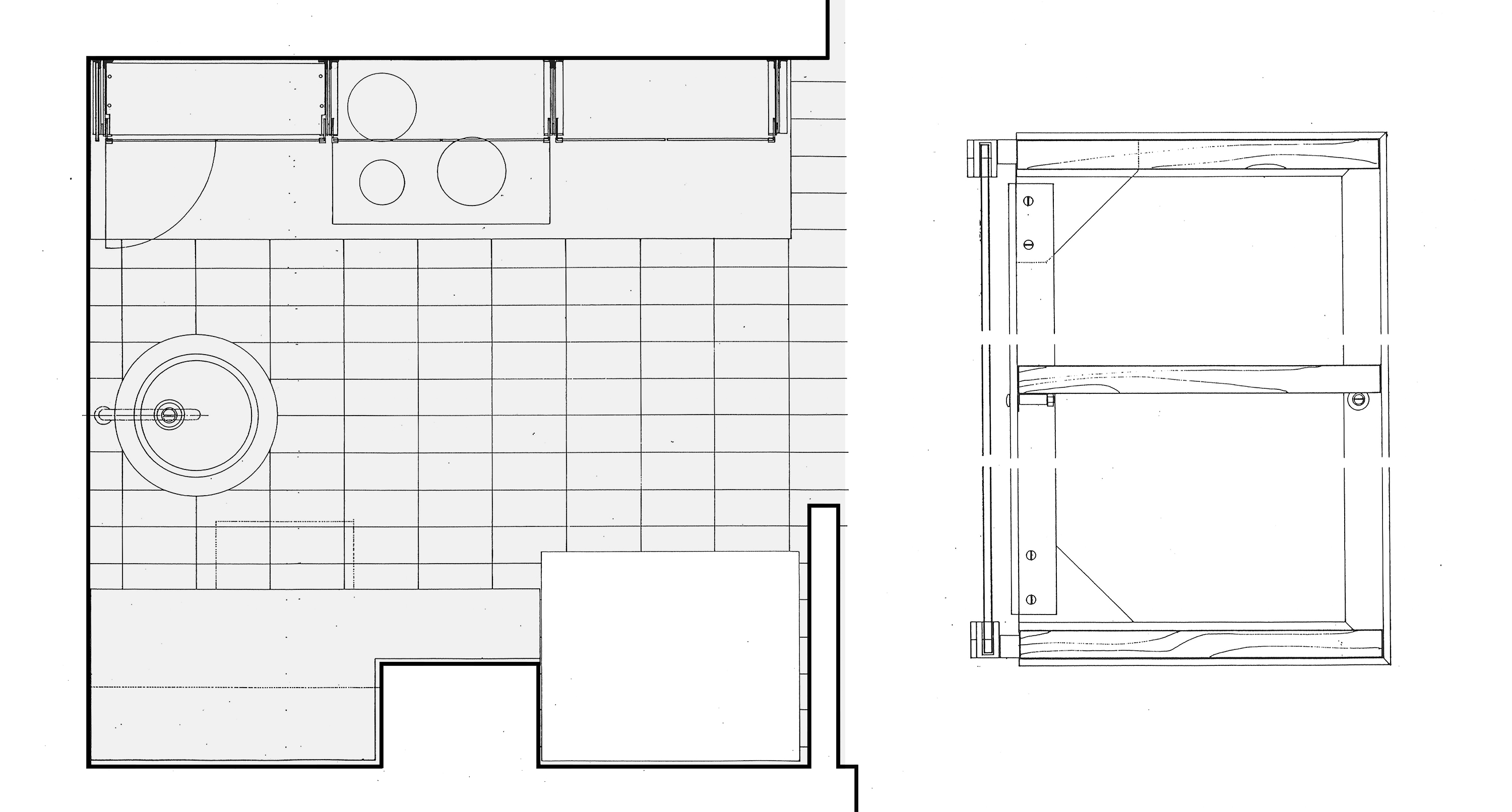
MOBILIARIO
COCINA: PLANTA + 0.90 – DETALLE CONSTRUCTIVO MUEBLE BAJO
COCINA: PLANTA + 1.50 – DETALLE CONSTRUCTIVO MUEBLE ELEVADO
CAMA/BIBLIOTECA: SECCIÓN
CAMA/BIBLIOTECA: PLANTA













